development projects
All Projectsfort lewis
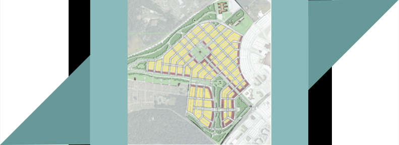
Tacoma, WA
Base expansion and mixed-use redevelopment including 2,500 new housing units of various types, new hospital, street realignment and Form Based Code Development. Primary area of focus was neighborhood design for the Madigan Hillside Housing, 1,451 housing units and more then 110 acres of open space. APA 2008 Federal Planning Division Outstanding Sustainable Planning or Design Project.
Ms. Brandrup was part of the design team working as Senior Project Architect and Planner for this exciting project as a consultant for The Urban Collaborative, LLC.



